Проект:
Берн

28 500 000
минимализм
Отсекая всё лишнее, оставлять рациональное
план 1 этажа
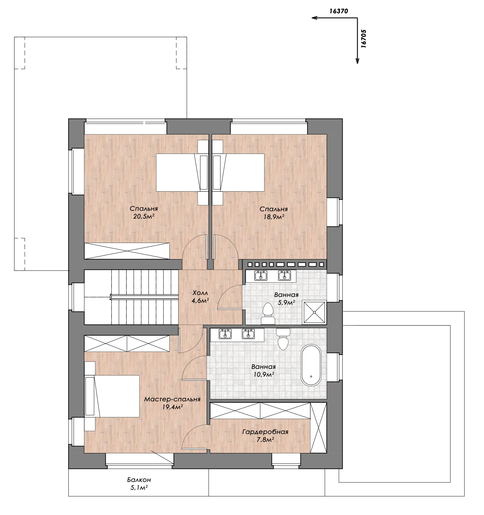
план 2 этажа

благоустройство:

  • - Отмостка по периметру дома
  • - Забор по периметру
  • - Озеленение участка (газон+автополив)
  • - Скважина, септик Евролос
  • - Въездная зона, парковка (брусчатка)
  • - Ландшафтный дизайн

пирог стены:

  • • Керамический блок 440мм
  • • Шов кладки: Графитовый
  • • Облицовочный кирпич:
  • - Крёкшино (Донские зори)
  • - Гессен Вайн (KÖNIGSTEIN)
  • - Ливерпуль (Славинский)
Drag View Close play